Restaurant Floor Plans: 8 Ideas To Inspire Your Next Location


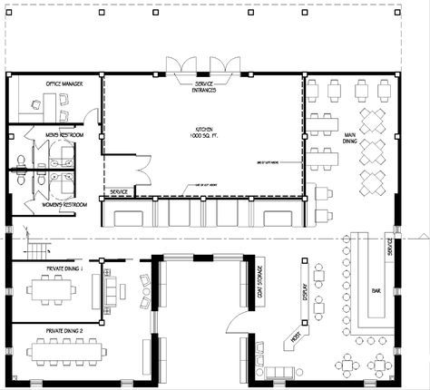
Example of a good restaurant floor plan

A good restaurant floor plan can mean the difference between a crowded, chaotic environment and a spacious, relaxing environment. The best option for you, your team, your customers, and your business overall is the spacious, relaxing environment.

But how do you go about creating such a restaurant floor plan? By taking inspiration from other successful layouts.

In this article, the restaurant management experts at Sling provide eight examples of restaurant floor plans that are sure to stimulate your creativity.

8 Ideas To Inspire Your Restaurant Floor Plan


Coffee shop with wooden floors and tables, netting hanging from ceiling

We’ve divided these floor plans into four general categories — kitchen, entry, bathroom, and dining room — so that you can focus on the good without getting lost in all the detail.

Kitchen Floor Plans

The kitchen layout below provides all the space your restaurant team needs to remain productive even during the busiest hours.


Example of a restaurant kitchen floor plan

Source: Posist.com

Notice that each job (cooking, beverage, food prep, dishwashing) has its own dedicated area in the above floor plan. This keeps traffic jams and congestion to a minimum so your team can work quickly and efficiently during the lunch and dinner rushes.

The kitchen layout shown below has its own delivery entrance that is separate from the food prep area. With that unique feature, your staff can accept deliveries, restock, and take inventory without getting in the way of the cooks and servers.


Kitchen floor plan

Source: Pos.toasttab.com

Another feature of this restaurant floor plan that deserves recognition is the staff changing room and bathroom in the lower right corner. These necessary areas give team members a place to go during their break and keep them from disturbing your customers.

Restaurant Entry Floor Plans

Many restaurant owners overlook the entryway when considering their floor plan. But an attractive, well-maintained lobby can enhance your image and make all your guests feel comfortable.


Restaurant entryway floor plan

Source: Pinterest.com

We don’t know the exact dimensions of the entryway above, but the restaurant layout does one thing particularly well: it separates the guests just walking in from the guests already seated.

For those walking in, it sets a mood of exclusivity and stylishness. They wonder what’s going on around the corners and can’t wait to be seated. This improves the guest experience and gives the restaurant a touch of mystery and class.

For the guests who are already in their seats, separating the entryway from the dining room(s) serves to create a bubble of privacy around their meal.

These guests aren’t distracted by all the people coming in and going out. They aren’t inconvenienced by the cold or hot air rushing in when outside doors are opened. And they aren’t subjected to the noise of those waiting for a table.


Entryway floor plan

Source: Giovannisitalianrestaurant.com

Similarly, the restaurant floor plan above separates the new guests from the dining guests. It also provides ample seating for those waiting for their table.

Another well-thought-out feature you’ll notice is that the bathrooms are situated adjacent to the entryway. With the restrooms so close, waiting guests don’t have to trek through the dining room — disturbing the dining guests in the process — to use the facilities.

Bathroom Floor Plans

After the kitchen, the bathroom may top the list of the most important areas of your restaurant floor plan. This is remarkable since the bathrooms occupy such a small amount of space when compared to your restaurant as a whole.

But a well-laid-out, well-maintained, clean bathroom can mean the difference between a good image and a bad image.


Restaurant bathroom floor plan

Source: Juliavaconsin.com

The bathroom layout above provides ample facilities for close to 200 guests in your restaurant (not all at the same time, of course).

The only thing we would improve on is including a second sink (perhaps removing one urinal) in the men’s room. This provides three toilets and two sinks for each gender and prevents lines from forming near the restroom.


Bathroom floor plan

Source: Bettermidmissourijobs.com

The above bathroom layout provides even more room for visiting guests. Notice the benches toward the bottom of the design and the vanity area in the women’s room (left side).

Including a separate mirror and counter space where ladies can freshen up prevents congestion at the sinks and makes moving around much easier.

It’s also worth noting that both restrooms include a changing table (it’s not labeled on the women’s side) for guests with small children. This convenience can make your guests feel welcome and cared for without you or your team saying a word.

Dining Room Floor Plans

The dining area in your restaurant floor plan can make your guests feel relaxed and at-ease or rushed and distracted. It goes without saying that the former is better than the latter.


Restaurant dining area floor plan

Source: Pinterest.com

The layout above does a good job of isolating the dining rooms by combining the entryway and the bar in one corner of the restaurant. This layout also provides separate dining rooms for even more privacy when necessary.


Dining area floor plan

Source: Pinterest.com

The eating area in this second restaurant floor plan (left side) is completely separated from the often noisy bar and busy bar, reception, and food prep areas (right side). This helps to maintain the ambiance created by the dining room itself.

Tips For An Effective Restaurant Floor Plan


Open space restaurant floor plan

1) Let Your Brand Dictate The Restaurant Floor Plan

One of the best things you can do for your business is to let your brand dictate the restaurant floor plan.

At its most basic, your brand influences how your target audience perceives your business. But, your brand also informs many of the other design decisions you’ll face as a restaurateur.

For example, if your brand is formal, that plays a significant role in determining the number of tables in your dining room, the appropriate decor, and a whole host of other variables.

Because of the effect it has on your restaurant floor plan, it’s important to define your brand before you even start thinking about how to design your space.

Even if you have plenty of ideas in your head about what your brand is or will be, we recommend that you write it all down. That way, you can see it in full and start to refine it to better suit your goals and your customer’s preferences.

For more information on branding (and marketing that brand), check out these articles from the Sling blog:

  • 23 Restaurant Marketing Tips To Win Your Market
  • Restaurant Social Media Marketing: Everything You Need To Know

2) Prioritize HVAC

HVAC stands for heating, ventilation, and air conditioning. It’s one of the more important decisions you’ll face when designing your restaurant floor plan.

Nowhere is the importance of good HVAC more important than in the kitchen. Commercial kitchens produce a lot of heat, aromas, and smoke.

You don’t want those byproducts seeping into the dining room where they can affect your customer’s experience. Proper ventilation can ensure that this won’t happen.

Similarly, take into account both the high and low temperatures outside your building along with the body heat of the people inside. On a really hot day, at maximum seating capacity, can your air conditioning keep your customers cool, or will your restaurant quickly become a sauna?

The same goes for heating in the winter. Can your furnace keep the dining room comfortable? You don’t want your customers bundled up in hats and scarves while waiting for their food.

3) Balance Ambiance And Seating Capacity


Restaurant with yellow decor and round tables

Seating capacity is an essential variable to consider when designing your restaurant floor plan. The number of customers you can serve at any given time will largely dictate the profits your business brings in every day.

For sheer seating capacity, very few layouts beat the cafeteria design with row upon row of long tables and benches. But the cafeteria floor plan does very little for the other variable in this section: ambiance.

Ambiance is the character and atmosphere of a place and is intimately connected with your brand.

Formal dining rooms, for example, need to focus more on ambiance—character and atmosphere—than on how many people they can seat.

Many restaurants these days occupy a middle ground where they’re concerned with both serving a good number of people and providing a pleasing ambiance.

To help you balance ambiance and seating capacity in your restaurant floor plan, we recommend the following process:

  1. Calculate how many customers you need to serve at one sitting to break even.
  2. Examine the spacing between your tables, the floor decorations, the positions of your wait stations, and other factors.
  3. Rearrange things to fit in more people while still remaining comfortable.
  4. If possible, try to double your break-even customer count so you’re turning a strong profit.

With a little effort, your restaurant can find the right mix of ambiance and seating capacity to please your customers and contribute to your bottom line.

4) Minimize Bad Tables In Your Restaurant Floor Plan

“Bad tables” are those that sit in problem areas within your restaurant floor plan. Common locations for bad tables include areas:

  • Near the kitchen
  • Near the restrooms
  • Near the front entrance

Typically, these are the places customers don’t want to sit.

A great way to identify these “bad tables” is to sit in every single chair at every single table in your restaurant.

While you’re sitting in each chair, be aware of the dining area around you. Are you getting a draft from the front door? Can you see into the kitchen or into a busser’s station? Are you too close to the next table?

Once you’ve asked yourself these questions and identified any potential problems, think of ways you can make these tables better.

You might disguise problem areas by installing dividers. You might set tall plants between tables to add some separation.

Even small solutions like these can help minimize bad tables and give all your customers the great dining experience they deserve.

5) Give Special Attention To The Bathrooms

Other than the dining areas, the bathrooms are the most important area to consider when designing your restaurant floor plan.

Don’t just think of this area as a stall and a sink, think of it as an extension of your brand.

It’s a room where you can replicate the ambiance, character, and color scheme so that your customers don’t lose the feelings you’ve worked so hard to elicit in the dining area.

The special attention you give to designing your bathroom should also extend to its upkeep and cleanliness.

Bathrooms should be kept clean and should be checked at least once an hour. We recommend that you assign a bus person, food runner, or host the responsibility of checking it every half hour to ensure that it’s tidy and stocked with supplies.

Remember, a dirty restroom reflects on the business as a whole and makes customers wonder about the cleanliness of the areas they don’t see.

6) Set Aside Extra Storage


Restaurant floor plan with lots of storage space

Unfortunately, storage is seldom considered a priority until it’s too late.

Many restaurateurs fail to consider storage when they’re designing their dream restaurant floor plan. But ample and easy-to-access storage space is important for the smooth operation and function of both your employees and your restaurant.

When evaluating your storage needs, it’s important to examine your restaurant’s purchasing and inventory process. Do you receive bulk deliveries once a month? Or do you receive small deliveries every week?

Similarly, does some of your inventory require special security? The answers to these questions will help you determine the amount of storage your restaurant needs.

It’s also important to make sure that storage space is easy to access and away from high-traffic areas. Keep your storage at the back of the restaurant but provide hallways that are wide enough to move large boxes in and out without a lot of problems.

You can also store more commonly used items along the perimeters of work areas so that your employees can get to them quickly.

7) Illuminate Your Restaurant With The Right Lights

Whether you need dim lighting to create an intimate ambiance or bright lighting to encourage conversation, your light fixtures play a big role in defining your restaurant floor plan.

There are so many lighting options these days that it’s easy to step away from the everyday fluorescents, create a mood, and set yourself apart from other restaurants in your niche.

Depending on your brand and the atmosphere you want to set, choose unique lighting options, such as:

  • Bulb string lights
  • Recessed can lights
  • Mason jar lights
  • Decorative sconces
  • Chandeliers
  • Table lights
  • Floor lamps
  • Faux-flame torches

When deciding which lights to include in your restaurant, consider these three important variables:

  1. Color
  2. Temperature
  3. Brightness
  4. Directness

For color and temperature, warm yellow or warm orange lights often convey a sense of relaxation, while cool blue or cool white lights stimulate activity.

Similarly, bright light in the morning and early afternoon encourages group conversation and activity, while dim light in the evening encourages more intimate conversation and a slower pace.

And then there’s directness, which, typically, comes in four varieties: direct, direct-indirect, indirect, and shielded.

Each variety has its own set of benefits and drawbacks, but for restaurants, the common choice is either indirect or shielded.

If all of those variables and potential choices are making your head swim, consider going with LED lights in your restaurant floor plan.

The right LEDs allow you to adjust the wavelength (color and temperature) and intensity (brightness) to match the ambiance you’re after. Placement is up to you.

Schedule Your Team To Maximize Your Floor Plan


Sling scheduling feature

It doesn’t matter how large or small your floor plan is, you can maximize the efficiency and productivity of your team by creating the best work schedule possible.

For example, if you manage a mom-and-pop diner with six booths and an eight-person bar area, you don’t need five servers, two food runners, a host or hostess, and someone to supervise the bar. Depending on the time of day, you may only need two or three servers to cover all your seating options.

By keeping your team as small as possible for the space, you can minimize your payroll costs while maintaining efficiency and productivity. The Sling suite of tools can help.


Sling's shift feature

Sling contains a wide array of features to streamline even the most difficult schedule, including:

  • Calendar-based team organization
  • Time and attendance tracking
  • Built-in time clock
  • Labor cost optimization
  • Customizable reports
  • Paid-time-off control
  • Messaging
  • Task list
  • And much more…

Sling even offers artificial intelligence that notifies you when there’s a conflict in your schedule and cloud-based schedule distribution so your team can access the schedule anywhere, anytime.

These features make the scheduling process quick, easy, and efficient so you can concentrate your time and energy on making your business a success.

For more free resources to help you manage your business better, organize and schedule your team, and track and calculate labor costs, visit GetSling.com today.

The post Restaurant Floor Plans: 8 Ideas To Inspire Your Next Location appeared first on Sling.

----------------------------------------------------------------

By: Sling Team
Title: Restaurant Floor Plans: 8 Ideas To Inspire Your Next Location
Sourced From: getsling.com/blog/restaurant-floor-plan/
Published Date: Sun, 01 Aug 2021 14:50:00 +0000

Read More


Did you miss our previous article...
https://coachingbusinessowners.com/growth/workforce-optimization-what-it-is-and-how-it-affects-your-success